Office
Office / To Let
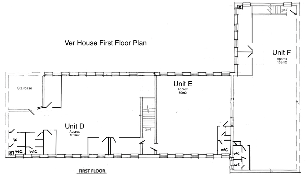
Office Unit F
Ver House, London Road, Markyate, St. Albans
Description
SPECIAL OFFER FROM ULTIMATE CONNEXIONS
Ultimate Connexions is proud to offer Unit F for lease. Take advantage of this unique opportunity with negotiable pricing!
PROPERTY OVERVIEW
Experience the allure of Markyate, a charming village strategically located on the A5183 (formerly the A5), just 2 miles north of Junction 9 on the M1 Motorway. This exceptional property is situated north of London Road, offering easy access via a private road and prominent visibility from the A5183.
PROPERTY DESCRIPTION
Step into Ver House, a newly renovated terrace of four two-storey office buildings. Unit B boasts 1,323 sq ft (123 sq m) of office space with brand-new carpets, contemporary ceiling tiles, energy-efficient LED lighting, and top-of-the-line air conditioning. This self-contained unit includes its own WC and kitchen facilities.
AMENITIES
- Enjoy premier office amenities, including:
- Modern suspended ceilings
- High-efficiency LED lighting
- Double glazed windows for insulation
- Partial air conditioning for comfort
- Reliable gas central heating
- Convenient perimeter trunking
- Fully functional kitchen facilities
- Separate male & female restrooms
- Generous parking with 32 spaces
LEASE TERMS
Available on flexible full repairing and insuring terms. Let’s tailor a lease agreement to meet your needs!
QUOTING RENT
- Unit F: £20,000 per annum
A rent deposit is required. A service charge will apply for the upkeep of common areas.
LEGAL COSTS
Each party is responsible for their own legal costs. VAT Rents are quoted exclusive of VAT.
Establish your business in the bustling village of Markyate.
Contact us today to arrange a viewing and discover how Unit B can be the perfect fit for your enterprise!
Key features:
Location
Ver House, London Road, Markyate, St. Albans
Interested in this property?
Fill in the form below and we will get in touch with you as soon as possible





